architecture the ralph m parsons company sonatrach residential community
Team Architect, Ralph M Parsons Company
Sonatrach, Algeria - 1976


(drawing by d holmes chamberlin jr)
the project
Develop plans for company housing at a remote factory site in Algeria.
Develop plans for 1, 2, and 4 bedroom townhouses for both families and bachelors.
Create presentation drawings and renderings that will accurately show layouts and architectural themes.
unless noted otherwise all images copyright d. holmes chamberlin jr architect llc

Site Plan, Sonatrach Residential Community, Bouira Tire Factory, Algeria, 1976.

One and two bedroom combo units, Sonatrach Residential Community, Bouira Tire Factory, Algeria, 1976.
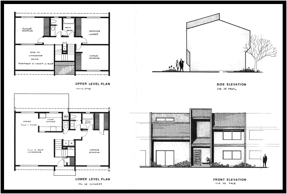
Four bedroom family unit, Sonatrach Residential Community, Bouira Tire Factory, Algeria, 1976.

Four bedroom bachelor unit, Sonatrach Residential Community, Bouira Tire Factory, Algeria, 1976.
copyright d. holmes chamberlin jr architect llc
page last revised august 2019